
-
Immerse is a premium-casual, experience-inducing restaurant that specializes in tropical-vegetarian cuisine. The target market for this restaurant are adults, the veggie-lovers and those that seek exploration in their dining experience. Fostering an environment that marries human interaction, technology and sustainability within the restaurant industry is the goal.
-
Hospitality Design | Restaurant
Group A-2, Assembly
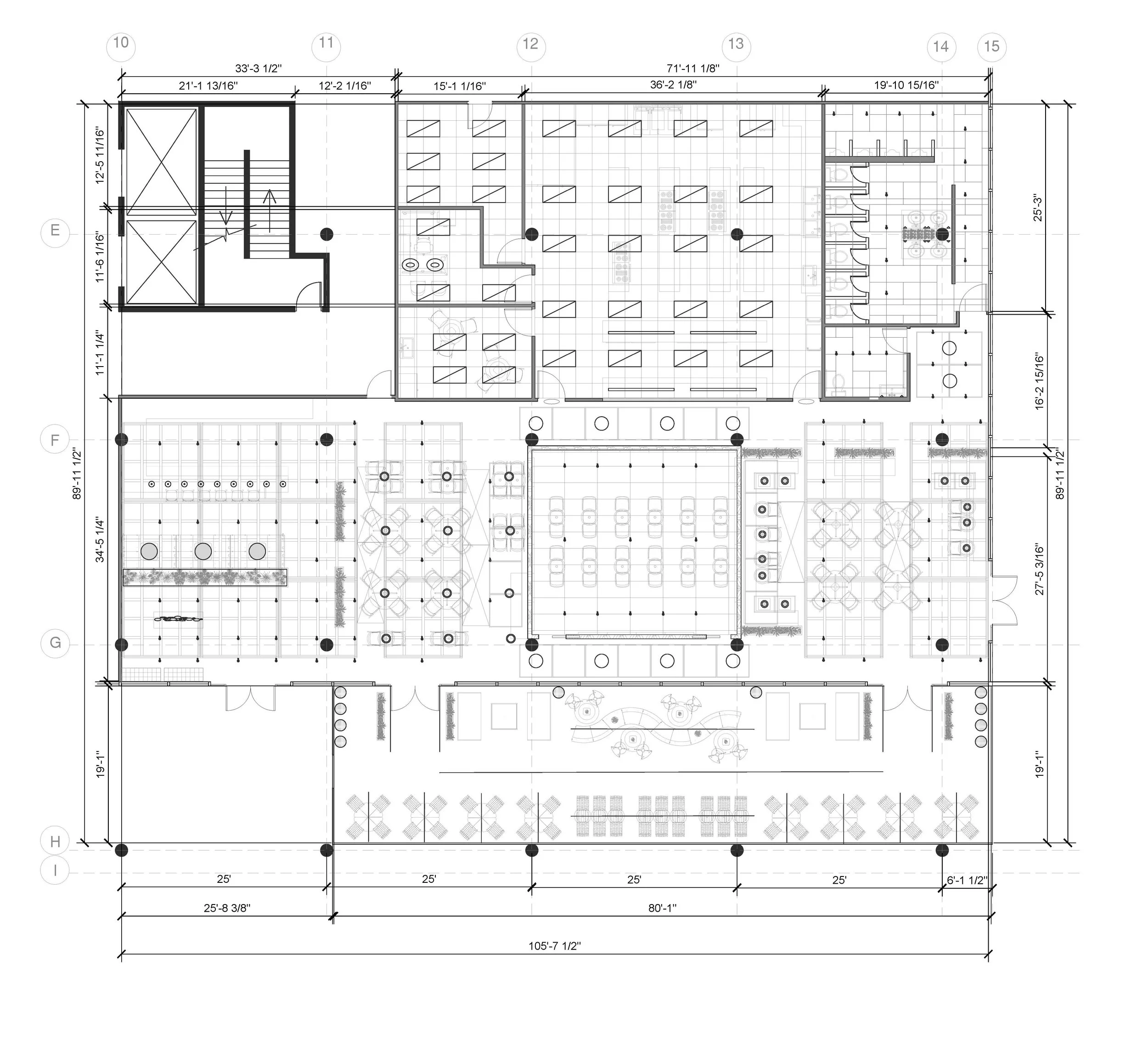
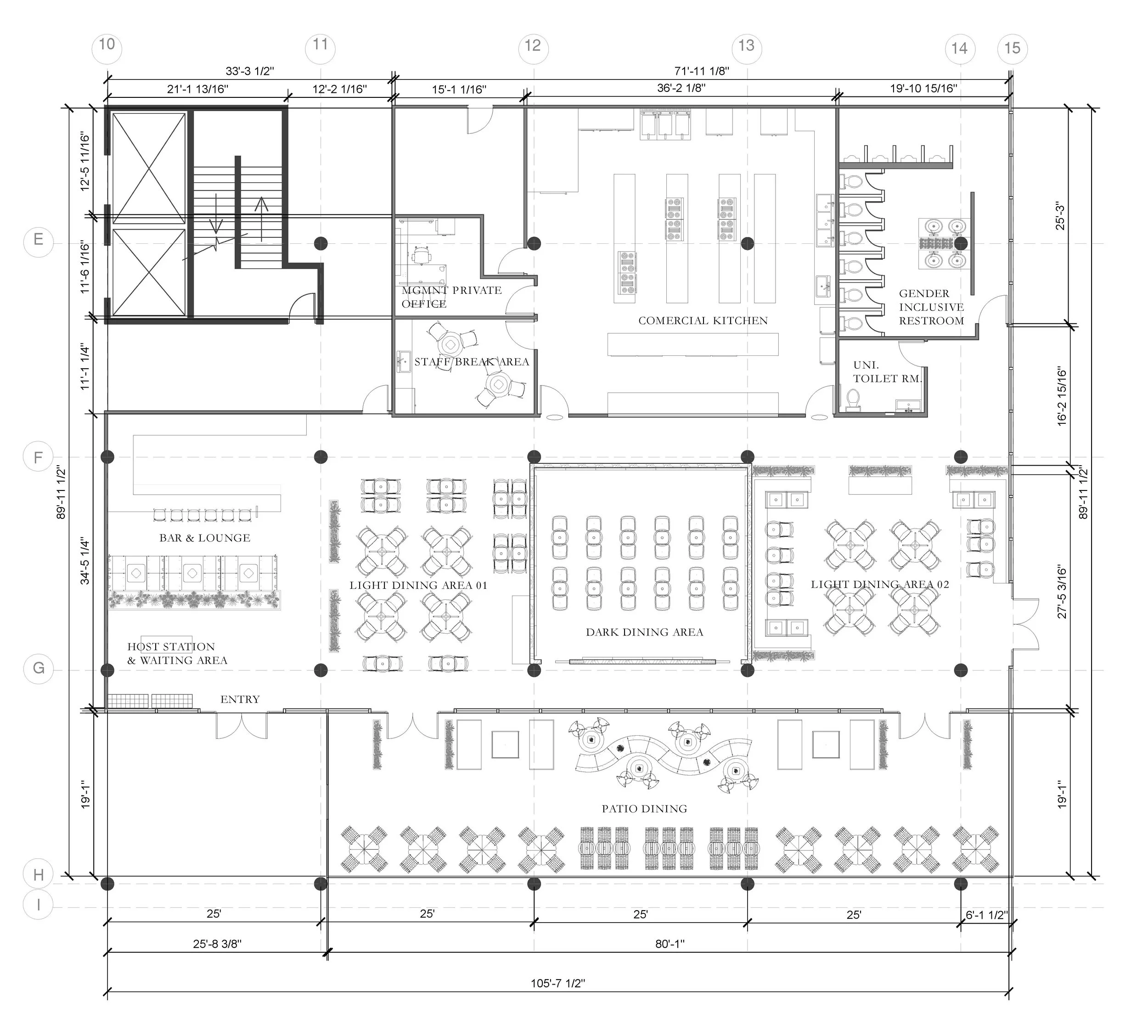
8429 Sq. Ft.
-
AutoCAD, Sketchup Pro, Adobe Suite, Municipal Building Codes, NBC 2020
/iˈmərs/
… to involve oneself deeply in a particular activity or interest.
The design concept
To create an environment that fosters the marriage between human interaction, clean technology and sustainability in the restaurant industry. Immerse shall inspire guests to venture & explore foods that derive primarily from nature. Guests shall also be inspired to create healthy relationships with technology, humans and nature.
Main Entry: Host Station & Waiting area
Lounge & Bar
Light Dining Area 01
Patio Dining Area
Dark Dining Area with TV Wall Panels
Light Dining Area 02
Commercial Kitchen
Gender Inclusive Restroom
Conceptual Sketches
Floor Plan
RCP

Adjacency Matrix

Bubble Diagram

Finishes